tower

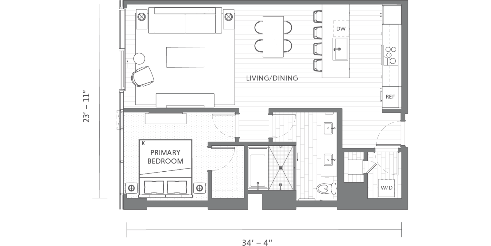
Residence 05

1 BED | 1 BATH | 797 SF

Residence 05 floor plan Location map of Residence 05

All dimensions are approximate.