podium

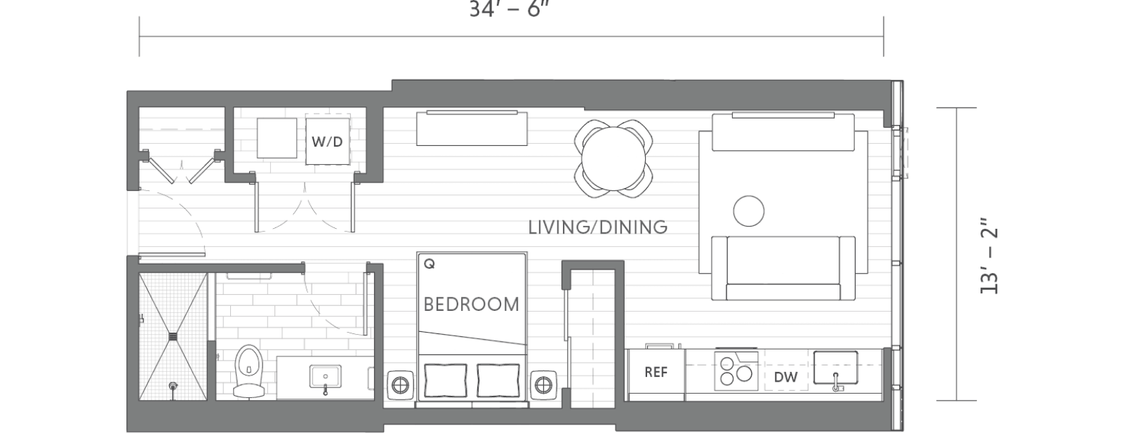
Residence 16

STUDIO | 1 BATH | 458 SF

Residence 16 floor plan Location map of Residence 16

All dimensions are approximate.